意匠的に優れ、魅力的で良質な空間とスタイルを生み出す建築コンセプト
ホームズ不動産販売株式会社
HOME
スタッフブログ
HOMES君ブログ
ホーム
Photo gallery
Home´sデザイナーズ住宅//no,81
2021/2/11
Photo gallery
PROJECT//
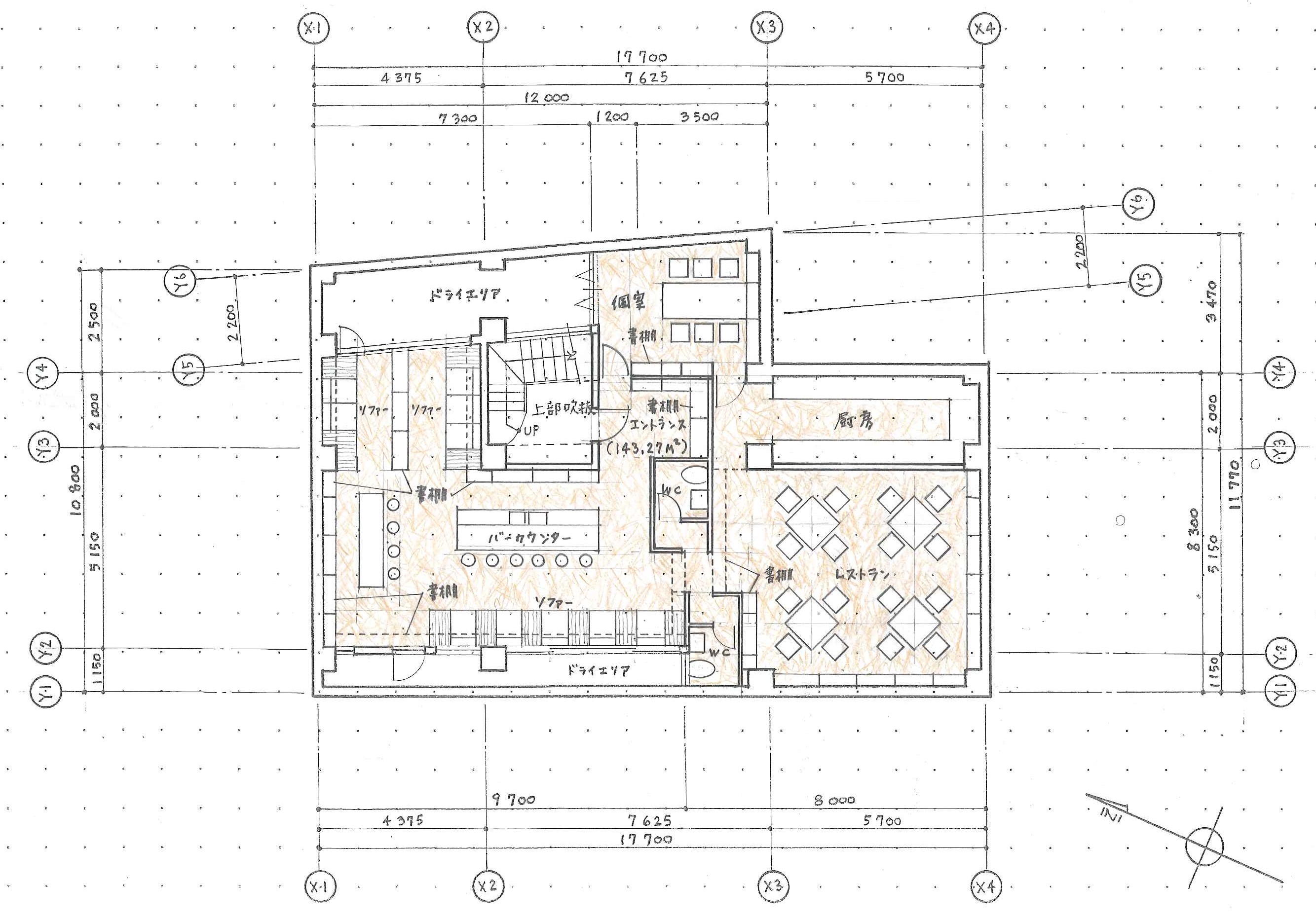
本*酒*食 を楽しむ空間
NASH160
Home´sデザイナーズ住宅//no,80
防水工事現場現地確認!